La Clara
CRÜ
Barcelona, Spain
An urban crack that stretches into the entrails of an anarchic block courtyard which resists external realities by virtue of its own neighborhood laws

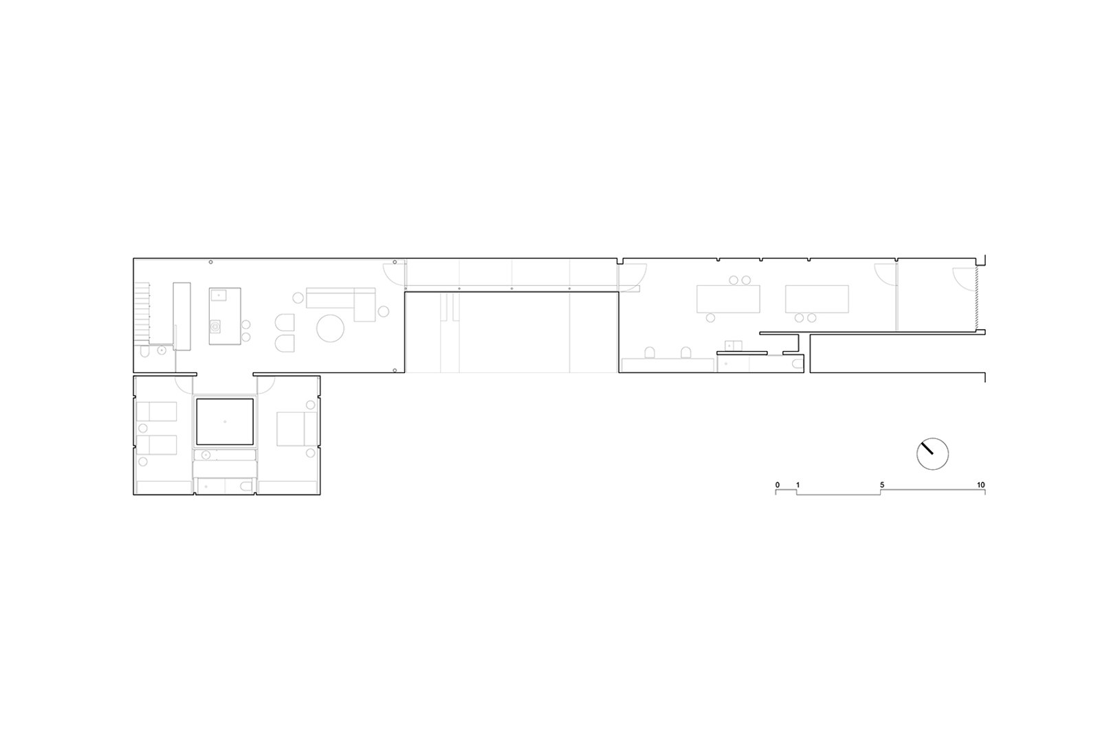
Located in one of the public laundry spaces that sprang up in Barcelona in the 19th century and part of the 20th, the residential project carried out by CRÜ preserves its functional and social essence. Emptying the two patios made it possible to organize a scheme that gets more private as it penetrates inward. One separates the studio and living room from the private area, while the smaller patio allow a similar subdivisión of the rest of the floor plan into two bedrooms and a bath. The master bedroom on a higher level is isolated from the stairs by means of mobile dividers made of iron and polycarbonate.
The spaces are made to coexist with the prolonged transparencies offered by the smaller patio. The other preexisting elements are maintained as a backbone, except the roofs that time has treated badly, which are replaced with composite decks on a structure of trusses and metal profiles. The material rawness of the dwelling comes from an aesthetic of bareness: surfaces and stairs are stripped, showing a flattened concrete both inside and out. An economic and industrial solution that evokes what could well be a contemporary laundry place.












