DKT1 System
Hidden mechanical fixing using undercut screws on the reverse side of the piece
Projects with complex cutting. Some highly complex facades include diverse formats in the same design. A flexible system is required that optimises the points of fixture of the material on the sub-structure and which responds to the important loads of each project.

Description
In the DKT1 system, according to the density of the fixings and minimum distances between perforations, a calculation is made of the individual forces to be absorbed by the material and the anchoring. Cylindrical perforation or undercut perforation achieve a clean and exact hole, where the peg and truncated cone-shaped screw work together in traction on the reverse side of the material.
The screw anchors to the profile, guaranteeing that the whole piece is fastened to the sub-structure. Dekton has had this system certified for ventilated facades according to ETA 14/0413 and BBA 16/5346 for 12 mm and 20 mm thicknesses, although it can be used for other non-certified thicknesses.

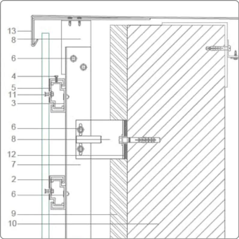
Detail 1. Vertical section

Detail 2. Horizontal section

Detail 3. Vertical section

Detail 4. Horizontal section
1. Dekton | 2. Fixing clip | 3. Horizontal Profile | 4. Propelling screw | 5. Adjustable screw | 6. Self-Propelling screw | 7. Vertical Profile | 8. Separator 'L' | 9. Thermal Insulation | 10. Supporting Wall | 11. Keil Anchoring | 12. Rupture of thermal bridge | 13. Padding
DKT1 Projects
Thanks to its resistance to flexotraction (≥45 N/mm2), Dekton responds perfectly to the needs of this ventilated system, where wind and seismic activity are critical agents in calculating and designing the enclosure.
Dekton also offers a multitude of possibilities for cutting, in large or small format, regular or irregular shapes, etc., making it the ideal material for highly sophisticated and demanding solutions.
Cap Ferrat | Hicksville Long Island | Porsche





Do you need help with a project?
Contact our specialists for advice
Do you need help with a project?
Contact our specialists for advice
Digital resources library
Digital resources
Attachment systems
Product data sheets
Tender & Offer texts
Contact us!
If you would like to receive a free sample or customised advice, please fill in the form.



