Enaire Foundation headquarters
Fernández-Abascal + Muruzabal & GFA2
Santander, Spain
A part of the refurbishment of the Naves de Gamazo, a gem of industrial architecture, the project creates spaces for the Enaire Foundation

Before the revamp by the Cantabrian practice, the original building by Jesús Grinda y Former had been enlarged and modified several times. This new project, like just another superposition, unifies the two sheds stylistically though an interpretation of their historical schemes, preserving the general massing but subtly altering the facade to give hints of the program changes. The result is an abstract exterior containing a serene, neutral interior.
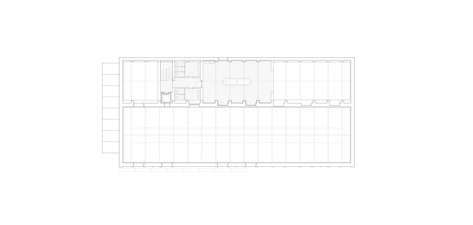
The metal structure that characterized the interior spaces is recovered, a decision that makes it possible to reserve the entire original shed for use as the main gallery, and to place the secondary programs in the annex, where a new mezzanine is inserted. The metal trusses are restored to hold up a new roof with a continuous skylight. Four other openings are made: two doors and two large windows to reinforce the overhead illumination.














